糟屋郡宇美町四王寺坂3丁目|シアーズホームバース|福岡で土地探しからの家づくり

ログインはこちら

販売物件情報

糟屋郡宇美町四王寺坂3丁目 

この物件のお支払い例(頭金0円/ボーナス払い0円)

物件価格2,580万円

月々の支払い68,119

※上記支払例の借入条件:金利0.6%、借入総額2,580万円、借入期間35年

所在地・交通

所在地
糟屋郡宇美町四王寺坂3丁目 
最寄駅
香椎線 宇美
徒歩分数
12分
最寄バス停
徒歩分数
小学校校区
中学校校区

※学校区は住所から自動判定したものであり、保証できる情報ではございません。正確な学校区はお問い合わせ下さい。

お問い合わせフォームはこちら

「人型アイコン」を地図上にドラッグすることで『Google Street View』に切り替わります。

※地図上の「対象地」は「〒811-2103 福岡県糟屋郡宇美町四王寺坂3丁目」の場所を指しています。実際の場所ではない場合がございます。詳しくはお問い合わせください。

お問い合わせフォームはこちら

物件概要

価格
2,580万円
種目
売地
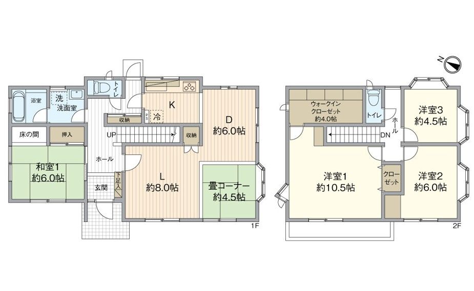
土地面積
210.14㎡
私道面積
建ぺい率/容積率
40%/60%
都市計画
未線引区域
接道状況
南東6m 公道 接面12.5m    一方道路
地目
宅地
土地権利
所有権
地勢
平坦
用途地域
第一種低層住居専用地域
現況
上物有
取引態様
媒介

取引条件等

引渡し
即時

その他

条件等
設備
温水洗浄便座、トイレ2ヶ所、追焚機能、システムキッチン、IHクッキングヒーター、食器洗浄乾燥機、ウォークインクローゼット、電気、プロパンガス、上水道、下水道、側溝、駐車場2台分、プロパンガス、上水道、下水道、側溝、電気
諸条件・相談
情報登録日
2025年10月14日
情報更新予定日
2025年10月28日
物件番号
99136
最近見た物件