販売物件情報
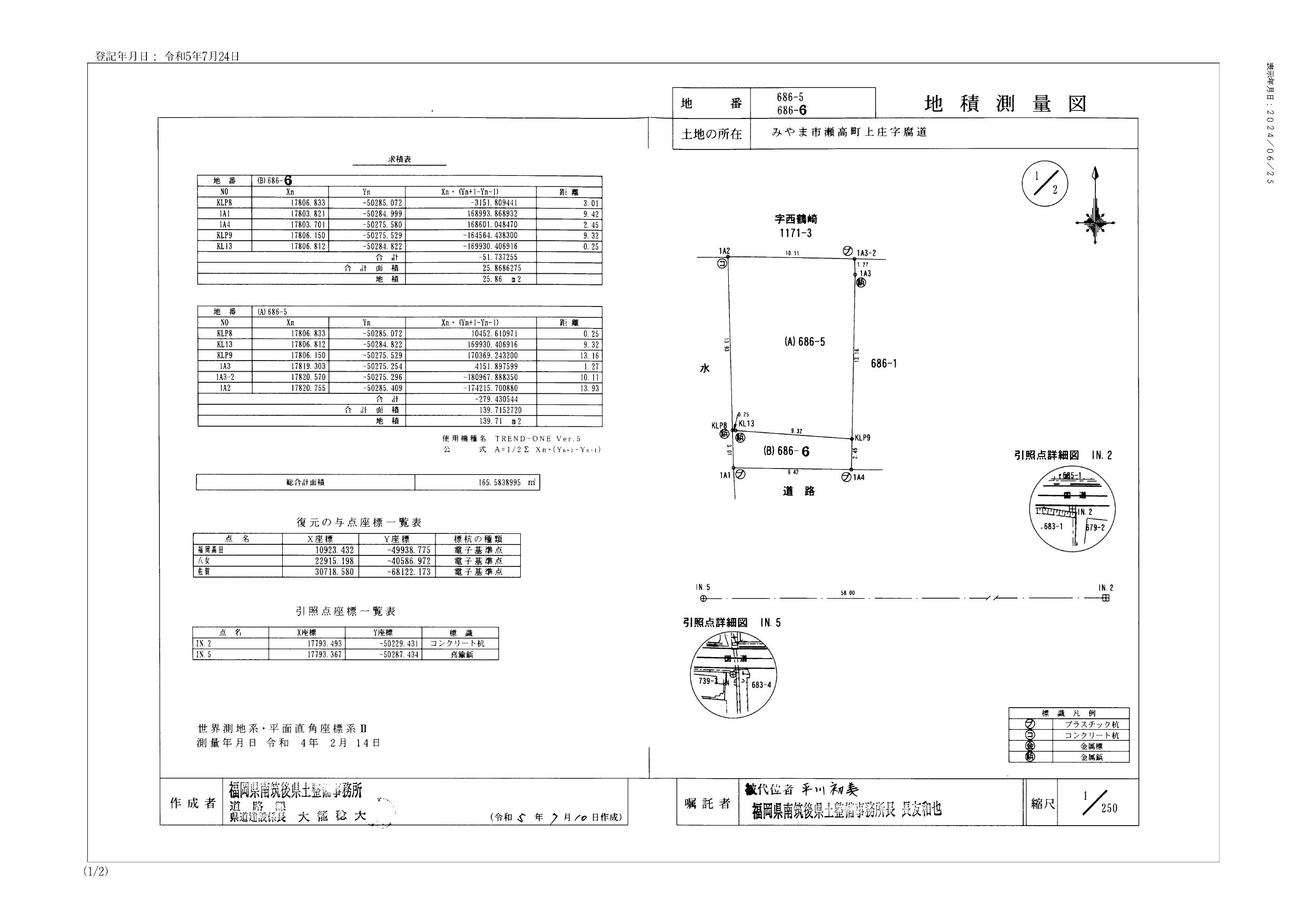
みやま市瀬高町上庄
この物件のお支払い例(頭金0円/ボーナス払い0円)
物件価格230万円
月々の支払い6,072円
※上記支払例の借入条件:金利0.6%、借入総額230万円、借入期間35年
所在地・交通
- 所在地
- みやま市瀬高町上庄
- 最寄駅
- 徒歩分数
- 最寄バス停
- 堀川バス 五十丁
- 徒歩分数
- 3分
- 小学校校区
- 中学校校区
※学校区は住所から自動判定したものであり、保証できる情報ではございません。正確な学校区はお問い合わせ下さい。
「人型アイコン」を地図上にドラッグすることで『Google Street View』に切り替わります。
※地図上の「対象地」は「〒835-0025 福岡県みやま市瀬高町上庄」の場所を指しています。実際の場所ではない場合がございます。詳しくはお問い合わせください。
物件概要
- 価格
- 230万円
- 種目
- 売地
- 土地面積
- 139.71㎡
- 私道面積
- 建ぺい率/容積率
- 70%/200%
- 都市計画
- 未線引区域
- 接道状況
- 南10m 公道 接面9m 一方道路
- 地目
- 宅地
- 土地権利
- 地勢
- 平坦
- 用途地域
- 無指定
- 現況
- 更地
- 取引態様
- 媒介
取引条件等
- 引渡し
- 即時
その他
- 条件等
- 設備
- 諸条件・相談
- 情報登録日
- 2026年2月14日
- 情報更新予定日
- 2026年3月11日
- 物件番号
- 109354
