販売物件情報
北九州市若松区桜町
この物件のお支払い例(頭金0円/ボーナス払い0円)
物件価格2,800万円
月々の支払い73,927円
※上記支払例の借入条件:金利0.6%、借入総額2,800万円、借入期間35年
所在地・交通
- 所在地
- 北九州市若松区桜町
- 最寄駅
- 筑豊線 若松
- 徒歩分数
- 24分
- 最寄バス停
- 徒歩分数
- 小学校校区
- 北九州市立若松中央小学校
- 中学校校区
- 北九州市立若松中学校
※学校区は住所から自動判定したものであり、保証できる情報ではございません。正確な学校区はお問い合わせ下さい。
「人型アイコン」を地図上にドラッグすることで『Google Street View』に切り替わります。
※地図上の「対象地」は「〒808-0026 福岡県北九州市若松区桜町」の場所を指しています。実際の場所ではない場合がございます。詳しくはお問い合わせください。
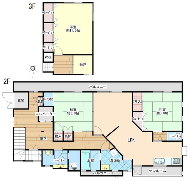
物件概要
- 価格
- 2,800万円
- 種目
- 売地
- 土地面積
- 203.47㎡
- 私道面積
- 建ぺい率/容積率
- 60%/200%
- 都市計画
- 市街化区域
- 接道状況
- 南7m 公道
- 地目
- 宅地
- 土地権利
- 所有権
- 地勢
- 用途地域
- 準工業地域
- 現況
- 上物有
- 取引態様
- 媒介
取引条件等
- 引渡し
- 相談
その他
- 条件等
- 設備
- 温水洗浄便座、トイレ2ヶ所、システムキッチン、食器洗浄乾燥機、洗髪洗面化粧台、電気、都市ガス、上水道、下水道、側溝、庭、駐車場3台分、都市ガス、上水道、下水道、側溝、電気[バス1坪以上][出窓]
- 諸条件・相談
- 情報登録日
- 2026年1月6日
- 情報更新予定日
- 2026年3月12日
- 物件番号
- 105872
